|
|
Descriptions:
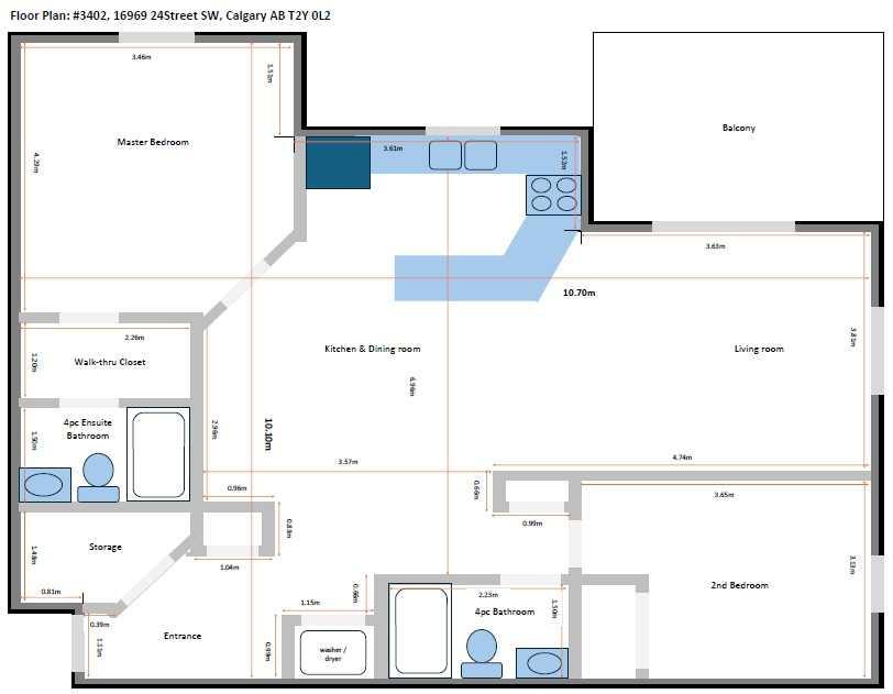
Welcome to The top floor, corner unit—the most sought-after floor plan in the complex—offering a functional layout and exceptional natural light. This top-floor, corner unit features two bedrooms, two full bathrooms, and one titled parking stall, with no neighbours above—just the sky.
Backing directly onto the lush ravine, this home delivers breathtaking views of the city, summer fireworks, and even the occasional winter aurora. Step inside and you’ll immediately feel at home in the bright, open-concept living space. The layout includes a spacious dining area, a central kitchen with a breakfast bar, and a sun-filled family room with ample space for any size sofa.
Enjoy relaxing or entertaining on your oversized corner balcony, perfectly positioned to take in the stunning views and overlook the surroundings. The generous primary bedroom offers a walk-through closet and a 4pc ensuite bathroom. The second bedroom is ideally located on the opposite side of the unit, adjacent to the second 4pc bathroom—perfect for guests, roommates, or a home office.
Additional highlights include in-suite laundry, a good size in-suite storage room, and more windows and natural light than any other suite. Condo fees include all utilities, adding exceptional value and peace of mind.
Easy access to the Stoney Trail—perfect for quick trips to the mountains west or seamless travel anywhere in the city.
Book your private viewing today and experience this incredible opportunity to own a truly special condo in a prime location.
|
|
| Status: |
|
Active
|
|
| Includes: |
|
none |
|
|
|
|
|
|
| Legal Description: |
| ACCESS Legal Description |
|
| Location & Listing Info: |
|
|
| Neighbourhood: |
Bridlewood
|
|
| Registered Size Includes: |
Interior Above Grade
|
|
|
|
|
|
| Property Info: |
|
| Property Type: |
Apartment |
| Home Style: |
Apartment-Single Level Unit |
| Year Built: |
2010 |
| Total Floor Area: |
977 sq. ft. |
| Brokerage: |
J Capital Realty |
| End Unit: |
2+ Common Walls,End Unit,No One Above
|
| Construction Type: |
Brick,Vinyl Siding,Wood Frame
|
| Front Exposure: |
W
|
| Condo Name: |
Bridlecrest Pointe
|
|
|
|
|
|
| Exterior: |
|
| Exterior: |
Brick, Vinyl Siding, Wood Frame |
| Construction: |
Brick,Vinyl Siding,Wood Frame |
| Front Exposure: |
W |
|
|
|
|
|
|
|
|
|
|
| Rooms: |
|
| Total Bedrooms: |
2
(Bedrooms Above: 2)
|
| Bathrooms: |
Full: 2
/ Half: 0
|
| Rooms Above: |
4 |
| Ensuite: |
Yes
|
| Parking Plan Type: |
Underground
|
| Garage: |
0
|
|
|
|
|
|
| Additional Info: |
|
| Heating: |
Baseboard |
| Floor Finish: |
Carpet, Linoleum |
| Fireplace Details: |
For Sale |
| Parking: |
Underground |
| Total Parking: |
1
|
| Restrictions: |
Contact for Restrictions |
| Heating Type: |
Baseboard
|
| Heating Fuel: |
Baseboard
|
| Restrictions: |
Restrictions
|
|
|
|
|
|
|
|
|
|
|
|
|
|
|
|
 |
Contact Aaron Wolfman -
8180 Macleod Trail SE, Calgary, Alberta, T2H 2B8
|
|
|
|
|
|
|
|
|
|
The data included in this display is deemed to be reliable, but is not guaranteed to be accurate by the Calgary Real Estate Board.
|
|
|
|
|
The data included on this website is deemed to be reliable, but is not guaranteed to be accurate by the Calgary Real Estate Board.
MLS®, Multiple Listing Service®, and the associated logos are all registered certification marks owned by CREA and are used to identify real estate services provided by brokers and salespersons who are members of CREA. The trademarks REALTOR®, REALTORS® and the REALTOR® logo are controlled by The Canadian Real Estate Association (CREA) and identify real estate professionals who are members of CREA. Used under license.
| | | |